logo

Back to Museum Guide



On this page

The Potential of the PlasterRecording the plaster fragments, Facts and Figures,

Making the Internet catalogue, The Internet catalogue, Acknowledgements



Introduction


The excavation

In 1991 Thanet Archaeological Society conducted an evaluation of The Abbey Farm Villa site, which lies near the historic village of Minster. In 1996 the Kent Archaeological Society adopted the site for one of their series of annual excavations. The excavations were directed by Dave Perkins of the Trust for Thanet Archaeology between 1996 and 2001, then by Keith Parfitt of the Canterbury Archaeological Trust until 2004. Many volunteers from the Kent Archaeological Society, Thanet Archaeological Society and the Dover Archaeological Group were involved with the site with the site and the post excavation work which is supervised by the Trust for Thanet Archaeology.


The wall plaster

Over the time of the project a large quanity of finds were recovered from the various excavations, they included pottery, coins, fragments of mosaic flooring and a variety of painted wall plaster fragments.


After the wall plaster fragments had been washed and analysed it had become clear that there was a wide range of colours and different design styles that could have formed a variety patterns when originally on the walls of the villa. Since the excavation, volunteers from the Thanet Archaeological Society are continuing the slow process of sorting the different painted plaster styles, and piecing together similar styles to form parts of the original pattern.

In this Internet catalogue the main painted plaster styles are avaliable to view and to show you the progress of this project.




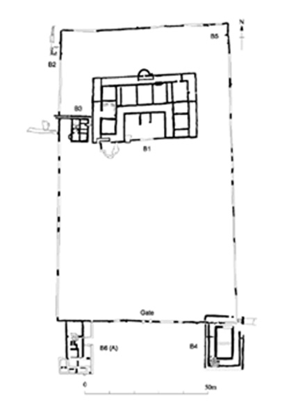
site plan

Site plan of the Abbey Farm Villa



The Potential of the Plaster


Specialist Assessment:


Steven Rickerby and Lisa Shekede,  wall plaster specialists from the Courtauld Insitute in London, came to the Trust for Thanet Archaeology and examined the the fragments of  wall plaster. They  produced a report on the potential for reconstruction or display and suggested ways of sorting, documenting and storing the plaster fragments in the collection. 

In the report they described the
significance of  the analysis of wall plaster fragments:





Loose fragments…represent the greatest amount of surviving material of Romano British wall paintings…

…Their neglect has contributed to the stagnation of…Scholarship in relation to wall paintings


S.Rickerby and L.Shekede



Back to "on this page"



Recording the plaster fragments
        
   
          The first phase of recording concentrated on the Art Historical element and established a style reference set:

•    Each box was examined in order by one person and any pattern or figure not previously seen was extracted to a style reference set

•    In a second process each box was examined by a larger team and fragments were matched to the style reference set and recorded on a  catalogue sheet


The second process used a data sorting methodology to order the material:


•    Fragments matched to styles were cross referenced by context and box number

•    All the data was entered into a spread sheet which can be searched using any combination of the attributes of style, location and
     excavation context

•    Each style was scanned  to a uniform scale and the images were cropped and edited to remove the scanning background






Back to "on this page"





Facts and  Figures



Some of the interesting data from the spread sheet is shown below:



•    227 separate contexts contained painted plaster

•    The total number of fragments is 7500

•    The number of fragments per context ranged from 1 to 860

•    258 styles were identified in the reference set



•    The largest numbers of style represented were St.1 plain red (2102 pieces) and plain white St. 2 (1147 pieces) and St. 301 (346
      pieces) 47.94% of the total

•    The next largest numbers represented were St.7, 8 and 10, plain Black, Orange and a dark Red (275, 245 and 119 pieces)

•    These plain pieces together represent 56.46% of the assemblage

•    65 styles are represented by 10 – 100 pieces (not all evenly sized)

•    96 are represented by between 1 and 9 pieces




Back to "on this page"



plaster style set box 1




Making the Internet catalogue



Taking the spread sheet and the scanned images we placed the different plaster styles into the following catalogue pages according to the number of times the style is represented in the plaster collection.




Back to "on this page"






The Internet catalogue



To view The Abbey Farm Villa painted plaster catalogue in the order of their frequency click on the page links below:

(The plaster styles are not in numerical order when on the page, but in order of high frequency to low frequency).

These pages contain a large numer of images and may be slow to load with a dial up connection - its worth the wait though

Page 1 for plaster styles: 1, 2, 4, 5, 6, 7, 8, 9, 10, 12, 15, 22, 24, 26, 27, 31, 33, 36, 37, 39, 50, 52, 53, 54, 60, 63, 65, 66, 68, 69, 72, 86, 93, 98, 102, 108, 109, 111, 115, 117, 208, 210, 214, 215, 216, 222, 223, 224, 226, 231, 251, 300, 301, 302, 303, 304

Page 2 for plaster styles: 3, 14, 16, 19, 21, 23, 28, 30, 34, 35, 38, 42, 51, 57, 58, 67, 70, 71, 74, 76, 80, 81, 83, 88, 89, 90, 91, 92, 96, 97, 103, 104, 105, 107, 110 112, 113, 118, 202, 203, 204, 205, 206, 211, 213, 218, 219, 220, 227, 228, 229, 230, 232, 240, 243, 246, 247, 254, 305  

Page 3 for plaster styles: 11, 13, 17, 18, 20, 25, 29, 32, 40, 56, 61,62, 64, 71, 73, 75, 77, 78, 79, 82, 84, 85, 94, 95, 99, 106, 119, 120, 207, 209, 217, 221, 233, 235, 238, 239, 241, 242, 244, 245, 248, 249, 250, 252, 255, 257, 258, 259, 260, 261, 262, 208, 308, 330

Page 4 for plaster styles: 41, 55, 87, 100, 101,114, 116, 200, 201, 212, 233, 235, 236, 253, 263








Back to "on this page"






Acknowledgements



The processing of the Painted plaster has been assisted by a grant from the Robert Kiln Trust.

The sorting of the style fragments was supervised by Ges Moody and carried out by volunteers from Thanet Archaeological Society, Kent Archaeological Society, a student from UKC and the scanning process was carried carried out by a work experience student from Kent College Canterbury.

Grateful thanks are extended to Mr Jack Cilfton of Abbey Farm for his interest and support for the Abbey Farm Villa excavations.




Web page designed and written by Victoria Claydon



First Posted - 14.07.06



Back to "on this page"